Download

Alle Unterlagen im Überblick

Verkaufsdokumentation
Baubeschrieb
Grundrisse
Umgebungsplan
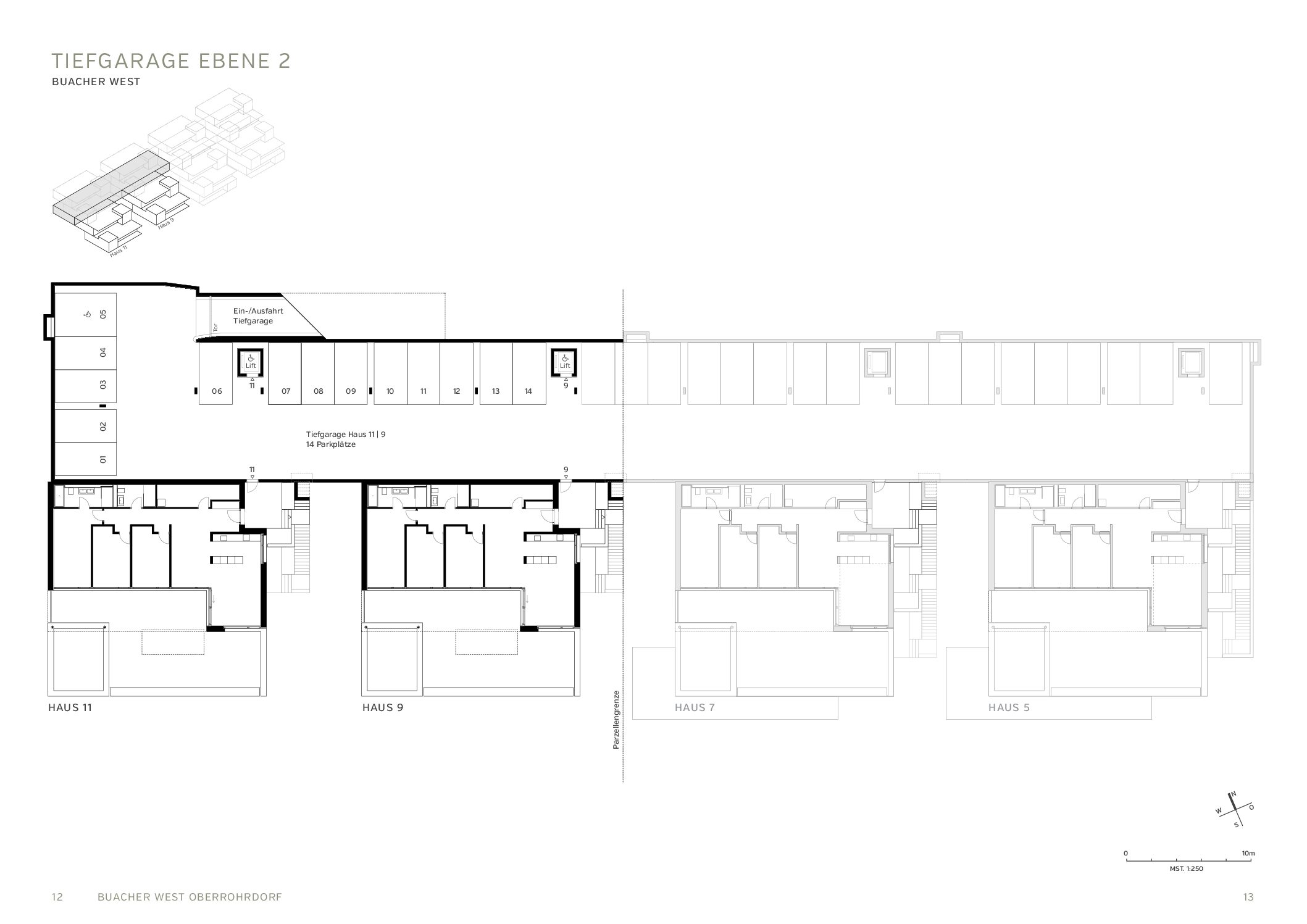
Tiefgaragenplan